- Главная
- Каталог
- Крепеж
- Фланцы, заглушки, втулки
- Фланцы прижимные
- Фланцы ASTM
Фланцы ASTM
-
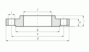
Технические характеристики
Фланцы ASTM, которые изготавливаются в России и других странах ближнего и дальнего зарубежья отвечают критериям, установленным:
- Американским обществом по испытанию материалов ASTM;
- Американским обществом инженеров-механиков ASME;
- Американским национальным институтом стандартов ANSI.
Данные организации, имеющие решающее влияние в сфере разработке технической документации тесно сотрудничают с национальными и вне государственными промышленными коалициями.
За годы своей деятельности ASTM разработало около 12 000 стандартов, которые в печатном выражении состоят из 80 томов. Предписания, вышедшие из данного учреждения используются по всему миру, в том числе и в России.
Большое количество промышленного оборудования иностранного производства вынуждает применять в эксплуатации детали, изготовленные по зарубежным стандартам.
Стандарт ASTM устанавливает для фланцев следующие параметры:
- показатели предельного диапазона рабочего давления;
- диапазон температур, при которых разрешено использование данных элементов;
- материалы, которые должны идти на производство фланцев;
- типоразмеры;
- величины допусков;
- маркировка;
- необходимые испытания;
- тип крепежей.
В соответствии с указанными в технической документации требованиями фланцы ASTM выпускаются в следующих вариантах исполнения:
- приварные;
- приварные воротниковые;
- резьбовые.
Среди приварных фланцев существует несколько разновидностей:
- воротниковые или юбочные (англ. WN (Weld Neck)), дающие устойчивость соединения к деформированию на сдвиг и на разрыв, экстремальным температурам, уменьшающие его турбуленцию;
- со впадиной под сварное соединение (англ. SW (Socket Weld)), имеющие раструб с радиусом, превышающим данный показатель у трубы, на которую они надеваются перед привариванием;
- внахлест (англ. L (Lapped)), плотно прилегающие к сварному кольцеобразному шву благодаря скругленной внутренней кромке, отличаются легкостью монтажа;
- плоские (англ. (Slip On)), могут крепиться при помощи двойных сварных швов и применяться при показателях низкого давления;
- заглушки (англ. BL (Blind)), глухие, без отверстий под трубу, позволяющие закрыть конец магистрали либо перекрыть ее в средине, чтобы дать возможность подобраться к необходимому участку.
На базе приварного фланца SO (плоский) выпускается резьбовой элемент (англ. ST (Screwed/Threaded)), позволяющий составлять трубопроводы из отдельных элементов без применения сварки.
Санкт-Петербургский завод крепежных изделий предлагает купить фланцы ASTM собственного производства. Каждая партия изделий сопровождается соответствующей документацией.
Фланцы ASTM, которые изготавливаются в России и других странах ближнего и дальнего зарубежья отвечают критериям, установленным:
- Американским обществом по испытанию материалов ASTM;
- Американским обществом инженеров-механиков ASME;
- Американским национальным институтом стандартов ANSI.
Данные организации, имеющие решающее влияние в сфере разработке технической документации тесно сотрудничают с национальными и вне государственными промышленными коалициями.
За годы своей деятельности ASTM разработало около 12 000 стандартов, которые в печатном выражении состоят из 80 томов. Предписания, вышедшие из данного учреждения используются по всему миру, в том числе и в России.
Большое количество промышленного оборудования иностранного производства вынуждает применять в эксплуатации детали, изготовленные по зарубежным стандартам.
Стандарт ASTM устанавливает для фланцев следующие параметры:
- показатели предельного диапазона рабочего давления;
- диапазон температур, при которых разрешено использование данных элементов;
- материалы, которые должны идти на производство фланцев;
- типоразмеры;
- величины допусков;
- маркировка;
- необходимые испытания;
- тип крепежей.
В соответствии с указанными в технической документации требованиями фланцы ASTM выпускаются в следующих вариантах исполнения:
- приварные;
- приварные воротниковые;
- резьбовые.
Среди приварных фланцев существует несколько разновидностей:
- воротниковые или юбочные (англ. WN (Weld Neck)), дающие устойчивость соединения к деформированию на сдвиг и на разрыв, экстремальным температурам, уменьшающие его турбуленцию;
- со впадиной под сварное соединение (англ. SW (Socket Weld)), имеющие раструб с радиусом, превышающим данный показатель у трубы, на которую они надеваются перед привариванием;
- внахлест (англ. L (Lapped)), плотно прилегающие к сварному кольцеобразному шву благодаря скругленной внутренней кромке, отличаются легкостью монтажа;
- плоские (англ. (Slip On)), могут крепиться при помощи двойных сварных швов и применяться при показателях низкого давления;
- заглушки (англ. BL (Blind)), глухие, без отверстий под трубу, позволяющие закрыть конец магистрали либо перекрыть ее в средине, чтобы дать возможность подобраться к необходимому участку.
На базе приварного фланца SO (плоский) выпускается резьбовой элемент (англ. ST (Screwed/Threaded)), позволяющий составлять трубопроводы из отдельных элементов без применения сварки.
Санкт-Петербургский завод крепежных изделий предлагает купить фланцы ASTM собственного производства. Каждая партия изделий сопровождается соответствующей документацией.




